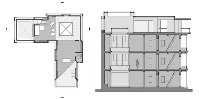
Writer's Retreat
6th International Student Design Competition, CAA, August 2003, 2nd prize winner(Ujjval H Panchal and Sachin P Soni)
"There are writers who find comfort and inspiration to pursue their activity in noisy cafes, smoky wine-bars, crowded trains, busy airport lounges, in public urban spaces... and there are writers who prefer the isolation of a private room, the ascetic conditions of a monastic cell, or the seclusion of a small cabin cut off from the rest of the world."
Writer’s Retreat was a competition to design an autonomous, minimal dwelling for a famous writer who wishes to escape the distractions of everyday life. The writer wants a retreat within which he or she can work every day of the year. Of considerable importance will be the ambience of the space created. It should be designed in such a way that it will encourage creative writing and reflect the character and needs of the user.
There are no restrictions - the site can be real or imaginary, located in an urban or rural context. One was free to choose any well-known author from the past or present, as their assumed client. Preferably, the writer should be associated in some way with the region in which the retreat is to be placed.
Place – Old city of Ahmedabad
A city with rich traditions in arts, crafts and literature, and as an ‘upcoming’ metro in the western state of Gujarat, is the classic metaphor for the Indian characteristic ‘psyche’ and changes. It has a complex and dynamic ‘layering’ – impositions, assimilations, amalgamations and reinterpretations of different values, as a result of diverse cultural influences. The world is changing and Ahmedabad has extended far beyond its fort walls, with the closure of its mills, its communal riots and deteriorating urban character; it remains, in spirits, true to its traditions.
Writer – Prof. Waris Alvi
Keeping those traditions to their spirits, and yet Modern, Prof. Waris Alvi is a true ‘amdavadi’. Prof. Alvi is one of the eminent literary personalities in the city. He has been active in the literary development of Urdu literature in the region. His revolutionary ideas come from both Nietzsche’s philosophy and the Urdu poetry of Ghalib and Sufis, a beautiful amalgam of east and west in itself.
Prof. Waris Alvi stays in the old city of Ahmedabad, still making it the ‘base’ of a value system. He is an example of that true spirit of continuum of tradition and modernity, the very basis of Ahmedabad’s continuity.
Writer's Retreat was published in international magazine The Architectural Review, November 2003







